︎
K T - H O U S E
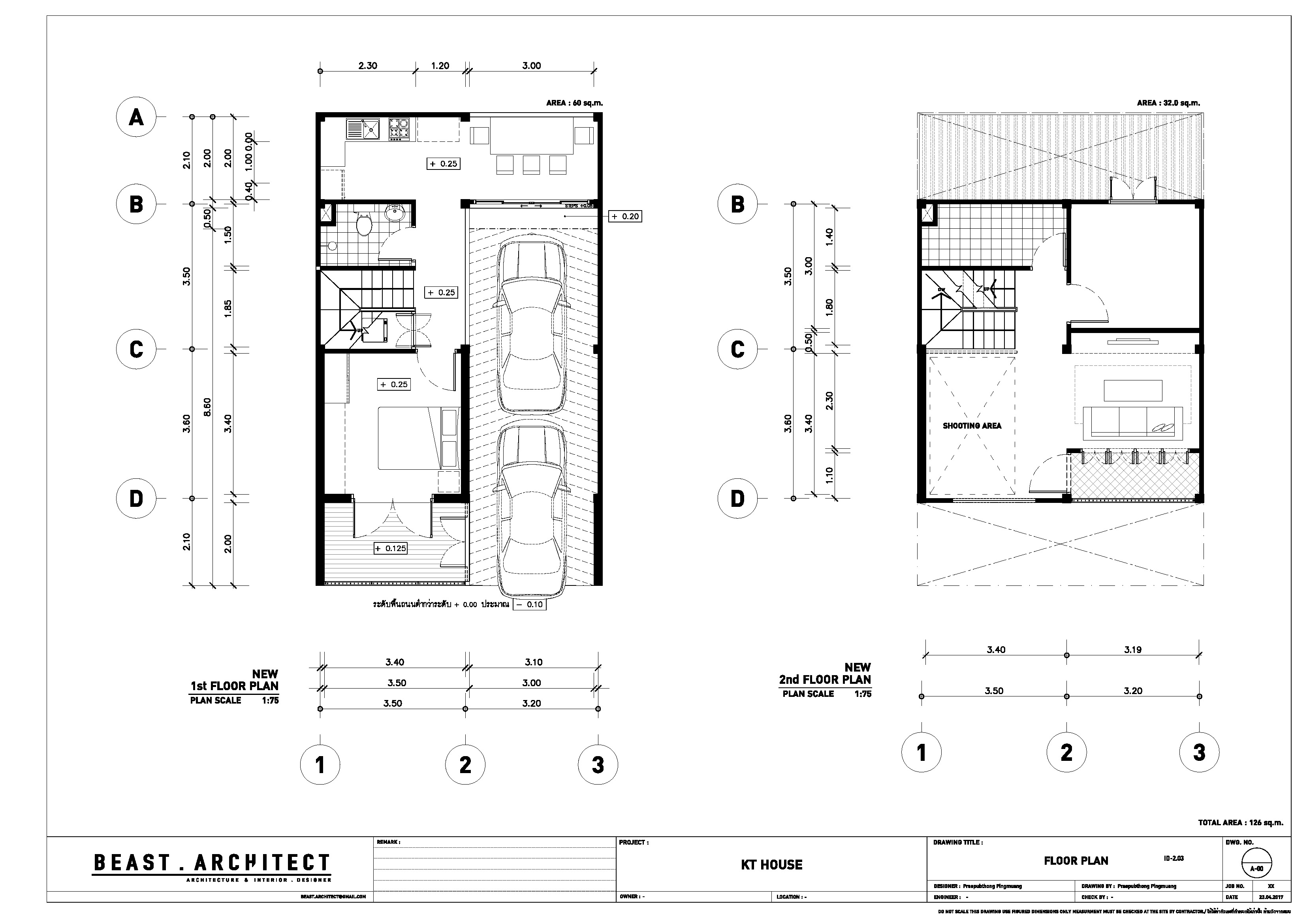
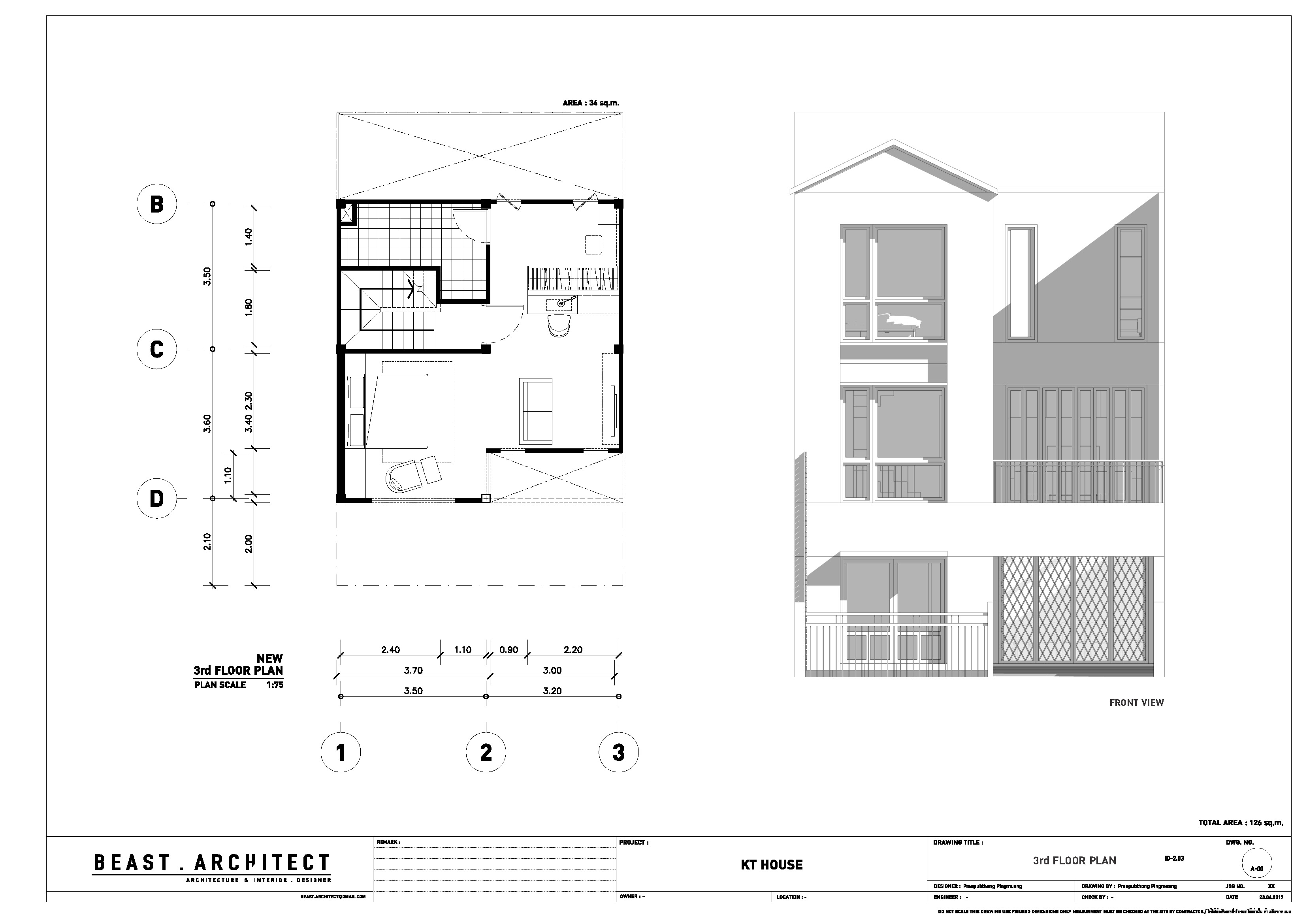
KT-HOUSE is a renovated town home project locate in Bangkok, Thailand. It is designed for single family house including a couple and eldery mother. The house is design in contemporary modern style with white, concrete and steal.
DRAWINGS
Softwares : Autocad
M U K E Y P I N G M U A N G
architecture
.
interior
.
designer
.
art
Home
About Me
Index
Contact
︎
︎